Vorige | Volgende
Verkocht

Oudwijkerdwarsstraat 78 Utrecht

Deze woning is verkocht

Neem contact met ons op

030-2290800

info@broekman-calis.nl

Omschrijving

Op TOPLOCATIE in het geliefde Oudwijk is deze PRACHTIGE EYECATCHER met VERGUNNING voor een OPBOUW gelegen. De charmante woning is door de huidige eigenaresse op hoogwaardige wijze verbouwd met oog voor en behoud van karakteristieke elementen. De sfeervolle woning bevindt zich op een heerlijke locatie nabij de Maliebaan, Burgemeester Reigerstraat en het Wilhelminapark. Kortom: STIJVOL WONEN OP TOPLOCATIE!

INDELING

Begane grond: entree, hal met toilet en meterkast van waaruit u de zonnige living bereikt. De lichte living is voorzien van een houten vloer en er is een open haard aanwezig. Vanuit de living bereikt u de moderne keuken (inbouwapparatuur van Bosch aanwezig). Deze verleent u toegang tot de heerlijk beschutte stadstuin.

Eerste verdieping: overloop van waaruit u twee ruime (slaap)kamers, een walk-in closet en royale badkamer bereikt. De badkamer beschikt over een ligbad/douche, wastafelmeubel, toilet, verwarmingselement en wasmachine-/droogaansluiting. De slaapkamer aan de rechter-voorzijde heeft een bijzondere lichtinval dankzij een lichtkoepel. De ruime overloop zou eveneens als werkruimte kunnen fungeren.

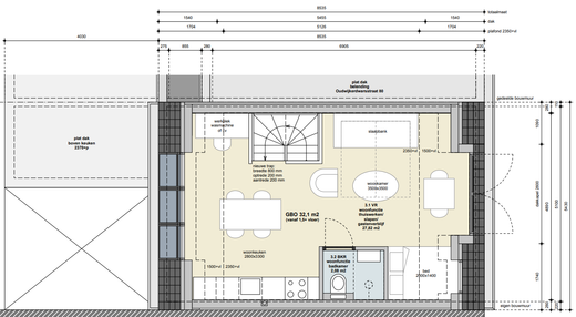
Tweede verdieping: TO BE CREATED! De huidige eigenaresse beschikt over een vergunning voor een opbouw om de woning met 30 m2 uit te breiden met twee extra slaapkamers of een grote werkruimte/studio. Kortom: een stadswoning met potentie!

Opvallend in deze charmante woning zijn de prachtige lichtinval, de royale ruimtes, karakteristieke elementen en het hoge afwerkingsniveau. Kortom: een sfeervol (t)huis voor velen!

Bijzonderheden:
- Charmante woning met vergunning voor opbouw op toplocatie;
- Ouderdomsclausule en asbestclausule van toepassing in koopovereenkomst;
- Vele karakteristieke elementen;
- Bouwkundig rapport aanwezig;
- Aanvaarding: in overleg.

Kenmerken

Overdracht

Aanvaarding
in overleg

Bouw

Soort woning
eengezinswoning
Type woning
tussenwoning
Soort bouw
bestaande bouw
Bouwjaar
1920
In aanbouw
nee

Details

Bouwrijpe bouwgrond
nee
Permanente bewoning
ja

Oppervlakten en inhoud

Woonoppervlakte
88 m²
Perceel
69 m²
Inhoud
223 m³

Indeling

Aantal kamers
4
Aantal slaapkamers
2
Aantal etages
2
Aantal badkamers
1
Badkamervoorzieningen
douche, ligbad, toilet, wasmachineaansluiting, wastafelmeubel
Keuken type
half open keuken, inbouwapparatuur

Energielabel

Energielabel
E
Einddatum energielabel
2030-12-16

Kadastrale gegevens

Kadastrale aanduiding
Abstede C 1577
Oppervlakte
69 m²
Eigendomssituatie
volle eigendom

Buitenruimte

Tuintype(n)
patio atrium
Hoofdtuin type
patio atrium
Hoofdtuin oppervlakte
10 m²
Hoofdtuin achterom
nee

Garage

Garagesoorten
geen garage

Parkeergelegenheid

Faciliteit
betaald parkeren, parkeervergunningen

Omschrijving

Op TOPLOCATIE in het geliefde Oudwijk is deze PRACHTIGE EYECATCHER met VERGUNNING voor een OPBOUW gelegen. De charmante woning is door de huidige eigenaresse op hoogwaardige wijze verbouwd met oog voor en behoud van karakteristieke elementen. De sfeervolle woning bevindt zich op een heerlijke locatie nabij de Maliebaan, Burgemeester Reigerstraat en het Wilhelminapark. Kortom: STIJVOL WONEN OP TOPLOCATIE!

INDELING

Begane grond: entree, hal met toilet en meterkast van waaruit u de zonnige living bereikt. De lichte living is voorzien van een houten vloer en er is een open haard aanwezig. Vanuit de living bereikt u de moderne keuken (inbouwapparatuur van Bosch aanwezig). Deze verleent u toegang tot de heerlijk beschutte stadstuin.

Eerste verdieping: overloop van waaruit u twee ruime (slaap)kamers, een walk-in closet en royale badkamer bereikt. De badkamer beschikt over een ligbad/douche, wastafelmeubel, toilet, verwarmingselement en wasmachine-/droogaansluiting. De slaapkamer aan de rechter-voorzijde heeft een bijzondere lichtinval dankzij een lichtkoepel. De ruime overloop zou eveneens als werkruimte kunnen fungeren.

Tweede verdieping: TO BE CREATED! De huidige eigenaresse beschikt over een vergunning voor een opbouw om de woning met 30 m2 uit te breiden met twee extra slaapkamers of een grote werkruimte/studio. Kortom: een stadswoning met potentie!

Opvallend in deze charmante woning zijn de prachtige lichtinval, de royale ruimtes, karakteristieke elementen en het hoge afwerkingsniveau. Kortom: een sfeervol (t)huis voor velen!

Bijzonderheden:
- Charmante woning met vergunning voor opbouw op toplocatie;
- Ouderdomsclausule en asbestclausule van toepassing in koopovereenkomst;
- Vele karakteristieke elementen;
- Bouwkundig rapport aanwezig;
- Aanvaarding: in overleg.

Kenmerken

Overdracht

Aanvaarding
in overleg

Bouw

Soort woning
eengezinswoning
Type woning
tussenwoning
Soort bouw
bestaande bouw
Bouwjaar
1920
In aanbouw
nee

Details

Bouwrijpe bouwgrond
nee
Permanente bewoning
ja

Oppervlakten en inhoud

Woonoppervlakte
88 m²
Perceel
69 m²
Inhoud
223 m³

Indeling

Aantal kamers
4
Aantal slaapkamers
2
Aantal etages
2
Aantal badkamers
1
Badkamervoorzieningen
douche, ligbad, toilet, wasmachineaansluiting, wastafelmeubel
Keuken type
half open keuken, inbouwapparatuur

Energielabel

Energielabel
E
Einddatum energielabel
2030-12-16

Kadastrale gegevens

Kadastrale aanduiding
Abstede C 1577
Oppervlakte
69 m²
Eigendomssituatie
volle eigendom

Buitenruimte

Tuintype(n)
patio atrium
Hoofdtuin type
patio atrium
Hoofdtuin oppervlakte
10 m²
Hoofdtuin achterom
nee

Garage

Garagesoorten
geen garage

Parkeergelegenheid

Faciliteit
betaald parkeren, parkeervergunningen

Foto's